Portfolio

ENERGY COMPANY CONCEPT STORES

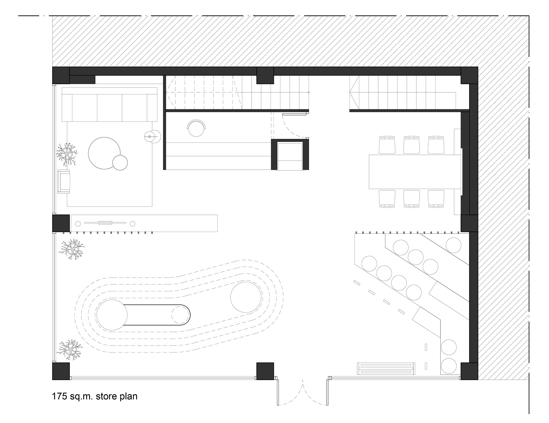
Energy company concept stores

The proposal has been developed after an invitation to participate in the competition regarding the concept design of the new stores of a Greek energy company. The new concept has been applied on two typologies, of a large (175sq.m.) store with a loft and a small (40sq.m.) one. The architectural language and functionality had to be common for each store despite the significant spatial difference. The choice of colors used throughout the project, as well as the programming, are aligned with the corporate identity and marketing prerequisites. The main color of the brand (blue) dominates the 2 spaces, while the wavy curves, a refernece to the company’s logo, becomes the inspiration for the central element of the concept. The rectangular metal tubes of the divider leave dense or sparse parts along its wavy path, letting people see through or protect private areas between the front and the back of the house, while also acting as the necessary railing of the loft. The lounge area, used for showcasing the company’s smart home technologies, is located in the quieter back of the store and is designed as a vivid yet cozy living room. Another point of interest is the amphitheatrical stage, where the clients can easily browse through the e-services offered through built-in tablets. Selling and info points at the front of the store have been designed as free-standing cylindrical islands, visually connected through the wavy crowning, which is αn illustrative interpretation of the company’s customers club, which covers all of its services like an umbrella. The “umbrella” is painted yellow according to the trademark color used by the company’s club. These key concept ideas have also been incorporated in a scaled down manner at the 40sq.m. store as well maintaining an aligned branding.

DESCRIPTION:

ENERGY COMPANY CONCEPT STORES

CATEGORY:

COMMERCIAL

LOCATION:

ATHENS, GREECE

BUILT AREA:

160m2 + 40m2

DESIGNED:

2019

PROJECT TEAM: KONSTANTINOS MATHEAS / ERMIS ADAMANTIDIS / DOMINIKI DADATSI