Portfolio

VILLA RITZ APARTMENT

Villa Ritz apartment

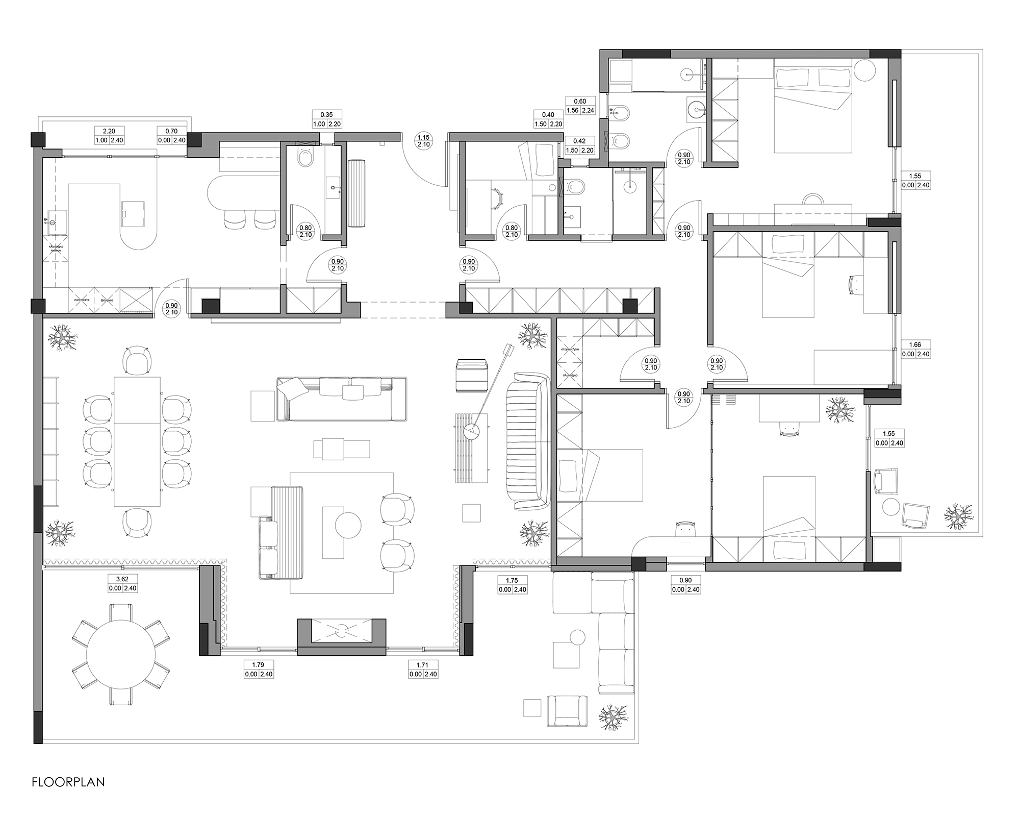
Perched above Thessaloniki, the Villa Ritz apartment transforms a 1970s residential structure into a contemporary family home that balances openness, intimacy, and panoramic views. The redesign responds to the rhythms of a family of five, negotiating collective spaces with private retreats through subtle spatial gestures.

The living room, once expansive, partially yields to create a third bedroom and a discreet laundry area, while a lightweight partition within the girls’ shared room establishes privacy without compromising fluidity. Each child’s space becomes a distinct microcosm: the boy’s room channels a sporty, streetwise energy, while the girls’ zones employ color, light, and semi-transparent barriers to mediate individuality and shared experience.

Materiality and light shape mood and identity throughout the apartment. Dark hardwood floors anchor the living areas, creating warmth and depth, while the kitchen is conceived as a luminous, sculptural space, its white marble surfaces amplifying natural light. In the private quarters, muted greys frame the master suite and small bathroom with quiet elegance, while vibrant, playful tones animate the children’s bedrooms and master bathroom, reflecting the energy of domestic life.

The Villa Ritz remodel is less about formal gestures and more about the choreography of daily life—how a home can flex, adapt, and resonate with its inhabitants. Through subtle spatial shifts, material contrasts, and carefully calibrated light, the project transforms a conventional apartment into a layered, experiential interior, where each corner holds both function and narrative, intimacy and openness.

DESCRIPTION:

VILLA RITZ APARTMENT

CATEGORY:

RESIDENTIAL

LOCATION:

THESSALONIKI / GREECE

BUILT AREA:

300m2

DESIGNED:

2022

PROJECT TEAM: KONSTANTINOS MATHEAS