Portfolio

COMPACT OFFICE

Compact office

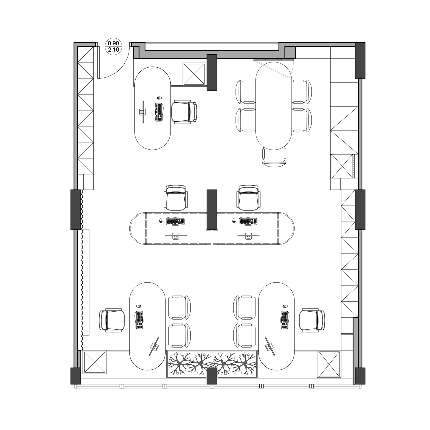
The space is located on the third floor of an office building in the city center of Thessaloniki, Greece. The owners had the need for expansion, as they had been working in a small office and they decided to buy the adjacent space in order to incorporate both offices into one. The scope of the interior design was to create a unified open plan office of approximately 60sq.m, fitting 5 workstations, a conference corner and storage space.

The open plan solution came down to spreading 3 offices and the conference table on four corners of the floorplan, while leaving adequate space for two more desks in the middle of the office. At the same time, all walls have been used for storage cabinets as well as shelving systems. The owners occupied the two desks in front of the windows to benefit from the abundance of natural light.

The old entrance door of the incorporated space was cancelled in order to leave space for the conference corner. The materiality of the composition has been kept simple, with the use of 3 basic materials (natural oak, black oak and white lacquer or wall paint). The orientation of the building’s façade was not ideal for letting enough natural light enter the office, so the overall brightness has benefited from the light color palette. A major functional choice, has been the design of curved desks in order to leave more accessible corridors among furniture. Just as importantly, the metallic black structures of the central desks complement the black lighting fixtures in a subtle play of contradiction between the white shell and dark details.

DESCRIPTION:

COMPACT OFFICE

CATEGORY:

WORK SPACES

LOCATION:

THESSALONIKI / GREECE

BUILT AREA:

60m2

COMPLETED:

2024

PROJECT TEAM: KONSTANTINOS MATHEAS