Portfolio

LISTED APARTMENT

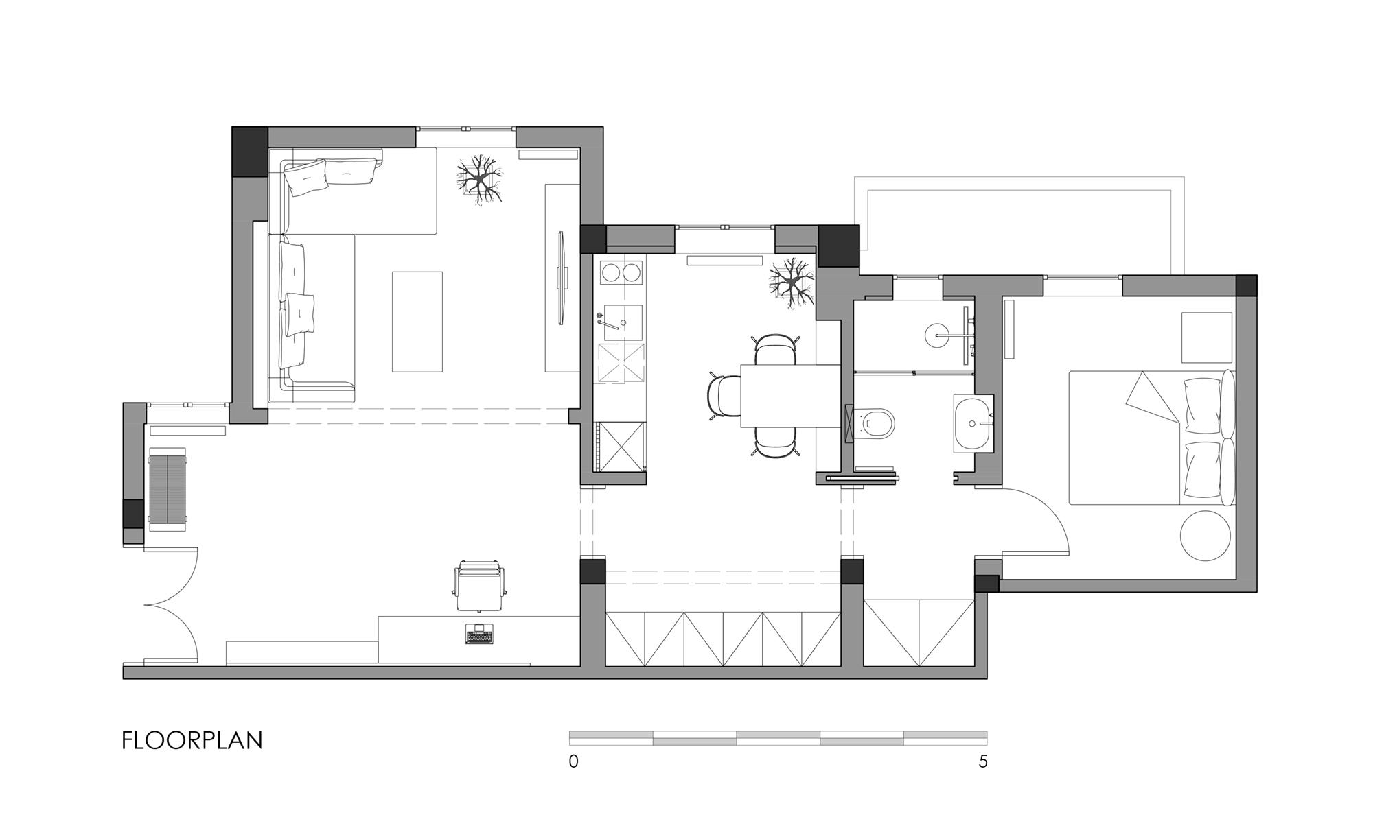
Listed apartment

The apartment is located on the third floor of a historic residential building. The primary goal of this renovation was to modernize the space, ensuring it met the owner’s specific requirements and contemporary living standards, all while respecting the building’s historical context. The design has been focused on three key elements: maximizing natural light, creating a highly functional layout and integrating abundant storage solutions. This has been achieved by subtly modifying the original floor plan. The kitchen, while remaining in its existing location, underwent a complete redesign to enhance its efficiency and aesthetic appeal. A significant change involved the introduction of a long, wide corridor that now seamlessly connects the common areas and entrance hallway to the rear of the apartment. This corridor cleverly integrates both the requested storage space and a convenient laundry area, which is directly connected to the bathroom. Going for a calm, cozy and bright aesthetic, dark American walnut veneer and flooring, as well as brown upholstery have been chosen as primary materials. These rich, dark colors are beautifully complemented by white walls that highlight the original gypsum decorations, resulting in a classic design language that blends harmoniously with minimal and cozy furniture.

DESCRIPTION:

LISTED APARTMENT

CATEGORY:

RESIDENTIAL

LOCATION:

THESSALONIKI / GREECE

BUILT AREA:

70m2

DESIGNED:

2024

PROJECT TEAM: KONSTANTINOS MATHEAS