Portfolio

MIXED-USE BUILDING REUSE

Mixed-use building reuse

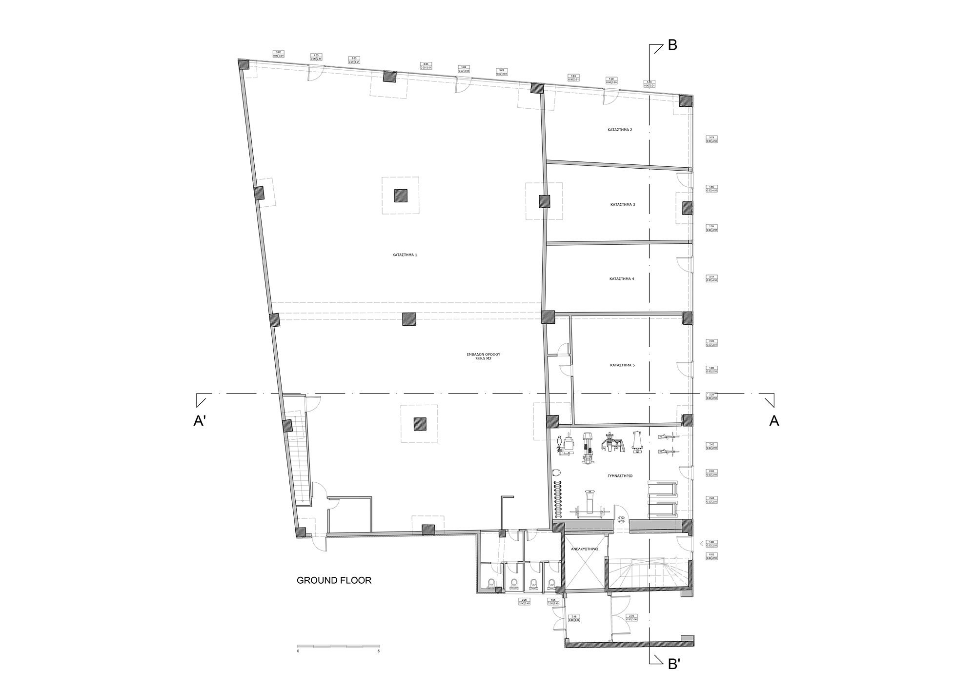
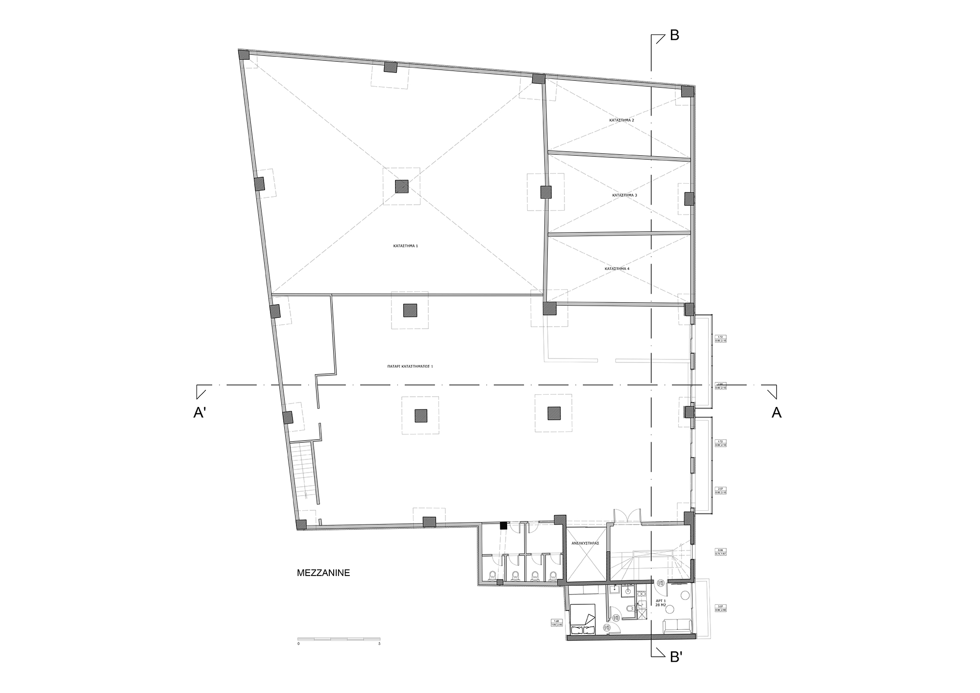
The project is situated in the Evosmos district of western Thessaloniki, Greece. The building was constructed in two phases. The first phase, based on the initial permit issued in 1980, involved the building of a two-story structure, which included a ground floor, a mezzanine, and a first floor. The second phase, approved under a separate permit in 1981, permitted the addition of a second floor. Initially, the building functioned as a warehouse; however, following a change in use in 2009, the first floor was converted into office space. Today, the building comprises ground floor shops and business premises on the first and second floors.

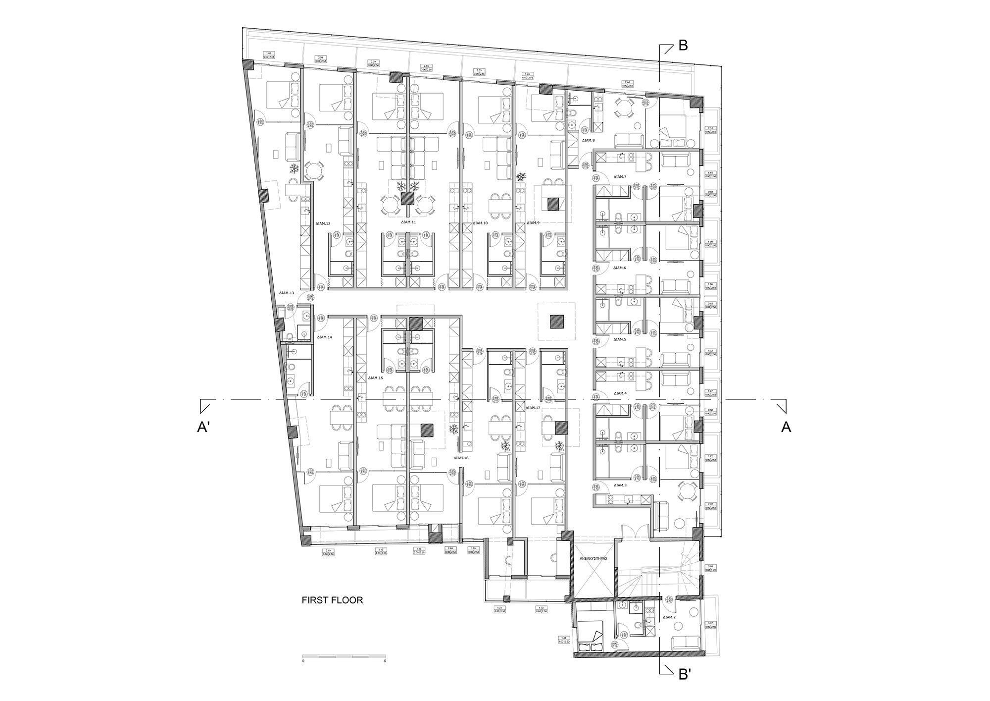
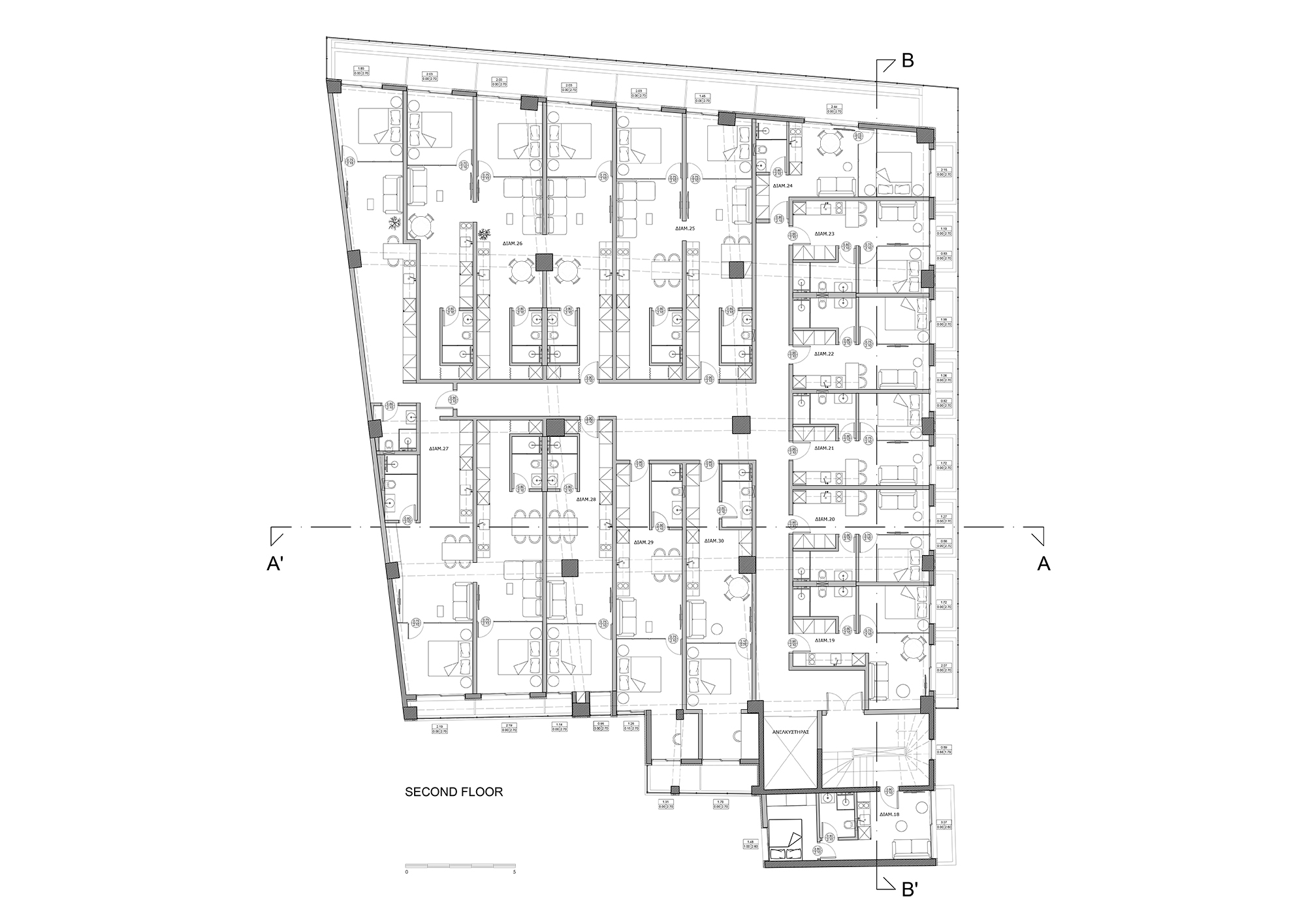
After completing due diligence, the developer decided to retain the commercial use of the ground floor and mezzanine while transforming the first and second floors into 37 compact apartments for long-term leasing. The central stairway remains in its original position, serving as a vertical connection within the building, further complemented by a spacious lift.

The building’s facades have been enhanced with a new second skin that unifies the diverse balcony designs from the original design. In accordance with the new concept, the store located near the entrance and the rooftop have been allocated for common areas that foster leisure and fitness among tenants. All interior spaces of the apartments have been configured to create ample corridors and ensure ease of movement for individuals with disabilities.

The selection of materials and textures has been established based on their durability and resistance to wear and pollution. The metallic elements and railings feature a subtle brown or dark gray color that creates a vibrant contrast with the white walls of the facades. The interior spaces have been designed to cultivate a cozy, minimal, and bright atmosphere, using natural oak wood for the flooring, along with white kitchen cabinets and closets.

There are three distinct types of one-bedroom apartments to cater to a variety of tenants. The larger apartments are divided by a transparent red metal room divider, allowing light to penetrate into the common spaces of each unit. Every apartment includes spacious bathrooms, kitchens, and adequate storage space, including integrated laundry areas.

DESCRIPTION:

MIXED-USE BUILDING REUSE

CATEGORY:

MIXED USE

LOCATION:

THESSALONIKI / GREECE

BUILT AREA:

2790m2

COMPLETED:

UNDER CONSTRUCTION

PROJECT TEAM: KONSTANTINOS MATHEAS

EMMANOUELA KOUMPIA / ANDROMACHI ZINGIRIDOU